Italiano
310.000 €

Attico Quadrilocale Bedizzole

4 o più locali in vendita • Bedizzole
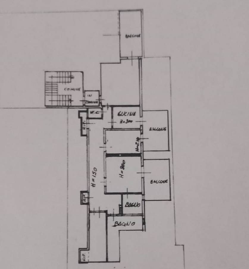
In posizione centrale e comoda a tutti i servizi, Garda RE propone in vendita un introvabile attico mansardato quadrilocale situato al terzo e ultimo piano di un edificio con ascensore.
L’appartamento si distingue per gli ampi spazi e la luminosità degli ambienti, impreziositi da terrazze panoramiche con vista aperta su Monte Baldo e, nelle giornate più limpide, fino agli Appennini.
Internamente si compone di: ingresso, soggiorno con zona pranzo e accesso diretto al terrazzo principale, cucina separata con terrazzo, ampio disimpegno con armadi a muro, camera, matrimoniale con bagno padronale, altre 2 camere, secondo bagno e locale lavanderia, zona spa sul terrazzo con jacuzzi e sauna finlandese, comodo ripostiglio. Completa la proprietà un garage singolo di generose dimensioni.
Le spese condominiali, comprensive di riscaldamento centralizzato, ascensore e servizi comuni, ammontano a circa € 3.600 annui.
Un’abitazione ideale per chi desidera spazi ampi, indipendenza e una vista mozzafiato nel cuore di Bedizzole, a pochi minuti dal Lago di Garda. Soluzione rara sul mercato, assolutamente da vedere.
Rispondendo all’annuncio, si accetta il trattamento dei dati personali ai fini della gestione della richiesta, in conformità al Regolamento
Caratteristiche principali
Codice
V000173
Città
Bedizzole
Categoria
4 o più locali
Prezzo
310.000 €
Locali
4
Mq
165
Classe energetica
G
Condividi su
Cookie preference